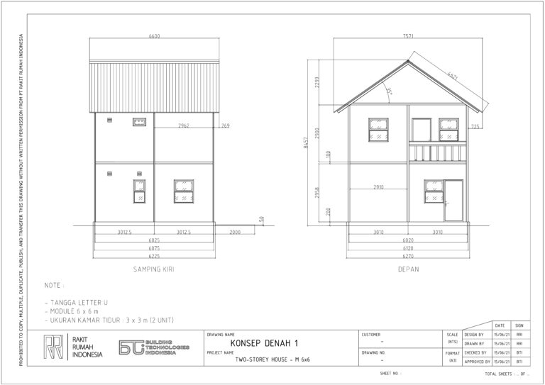
| A. | House Dimension |
| 1 | Body (L x W x H) | 6,07 x 6,12 x 8,46 m |
| 2 | Terrace (L x W x H) | 6,12 x 2 x 0,05~0,1 m |
| 3 | House area | 74,3 m2 |
| 4 | Terrace area | 12,2 m2 |
| 5 | Roof slope | 35° |
| B. | Foundation |
| 6 | Column | Cakar ayam (box footing frame : steel Æ10 mm, 400x400x100 mm & Anchor M16, L = 600 mm) |
| 7 | Sloof | Lightweight concrete 300 x 100 mm (burried 150 mm or can be customized) |
| 8 | Slab | Thickness : 50 mm with K-200 ~ K-250 concrete quality |
| C. | Floor |
| 9 | 1st Floor | Main floor : slab covered by 600 x 600 mm ceramic tile |
| Bathroom floor : slab covered by 250 x 250 mm ceramic tile |
| 10 | 2nd Floor | Main floor : lightweight concrete panel with 75 mm thick covered by 3 mm thick vinyl |
| Balcony floor : lightweight concrete panel with 50 mm thick covered by 3 mm thick vinyl / 600 x 600 mm ceramic tile |
| Bathroom floor : lightweight concrete panel with 50 mm thick covered by 250 x 250 mm ceramic tile |
| D. | Structure |
| 11 | Column & beam | RHS 100 x 50 x 3 mm |
| RHS 125 x 75 x 3 mm |
| Angle 40 x 40 x 4 mm |
| 12 | Joint bracket | 5 mm thick SS400 steel plate processed by laser cutting |
| 13 | Joint system | Bolted by M10 |
| 14 | Wall joint profile | Joint L 35 aluminium |
| 15 | Wall reinforced joint | U channel 35 aluminium |
| 16 | Roof reinforced joint | Side roof joint 35, angle : 35°, aluminium |
| 17 | Roof joint profile | Roof joint 35, angle : 35°, aluminium |
| E. | Stairs |
| 18 | Frame | RHS 100 x 50 x 2 mm |
| SHS 50 x 50 x 2 mm |
| SHS 40 x 40 x 2 mm |
| RHS 40 x 20 x 2 mm |
| Strip plate 50 x 5 mm & 40 x 3 mm, 8 mm thick steel plate |
| 19 | Step | Using 35 mm thick lightweight concrete panel covered by 3 mm wood or vinyl |
| 20 | Joint system | Bolt & nut by M10 & M8, dynabolt M16 & M10, partial welded |
| F. | Wall |
| 21 | Lightweight concrete panel | Using lightweight concrete with several thickness option : D35 and D50 |
| Standard W x L : 600 x 3000 mm |
| Connection between wall panel using MU 380 or Thinbad and reinforced by straight and U steel anchor with Æ 6 mm |
| G. | Roof |
| 22 | Lightweight concrete panel | 35 mm thick, T x W x L : 35 x 600 x 3000 mm |
| 23 | Roof | UPVC roof : Avantguard, W x L : 1130 x 4600 mm |
| 24 | Panel edge cover | U shaped PVC list for 35 mm thick panel |
| H. | Ceiling |
| 25 | Ceiling is optional due to customer need or other consideration | Using gypsum with 9 mm thick and hollow frame |
| I. | Door |
| 26 | Door Frame | Aluminium anodized, white color |
| 27 | The door leaf is made of lightweight concrete with wall paint or oil paint and around the door is covered with PVC list. | Main and bedroom door (T x W x H) : 37 x 820 x 2100 mm |
| Bathroom door (T x W x H): 37 x 720 x 2000 mm |
| 28 | Lockcase, door handle dan hinge | Dumont and Hona |
| J. | Window |
| 29 | Window frame is made of aluminium | Main and bedroom window (W x L) : 1000 x 1200 mm, horizontal split in the middle |
| Bathroom window (W x L) : 300 x 600 mm |
| Clear glass with 5 mm thick (main and bedroom window) |
| Frosted glass with 5 mm thick (bathroom window) |
| K. | Sanitary |
| 30 | Toilet | American Standard |
| 31 | Washbasin | American Standard |
| 32 | Water tap | Wasser |
| 33 | Floor drain | American Standard, stainless steel |
| L. | Paint |
| 34 | Exterior wall | Nippon Paint Vinilex Weatherbond (exterior) |
| 35 | Interior wall | Nippon Paint Vinilex (interior) |
| 36 | Bathroom wall - top section | Nippon Paint Vinilex |
| 37 | Bathroom wall - bottom section | Nippon Paint Elastex Waterproof 3 in 1 |
| 38 | Roof ceiling | Nippon Paint Vinilex |
| M. | Electrical |
| 39 | Cable | NYA Æ2,5 mm red, black, blue, L = 50 m / roll |
| 40 | Cable duct | PVC material |
| 41 | Lamp | Phillips |
| 42 | Lamp fitting | Panasonic |
| 43 | Electric socket | Panasonic / Schneider |
| 44 | Single electric switch | Panasonic |
| 45 | Double electric switch | Panasonic |
| 46 | Triple electric switch | Schneider |
| 47 | Air conditioner socket | Panasonic |
| 48 | MCB | Merlin Gerin, 6 Ampere |
| 49 | MCB box | Presto or equivalent |
| N. | Piping / Plumbing |
| 50 | Clean water pipe | Maspion ½” AW class |
| 51 | Waste water pipe | Maspion 1” D class (washbasin) |
| Maspion 3” D class (floor drain) |
| Maspion 4” D class (toilet) |
| 52 | Fitting | Rucika or equivalent |
| 53 | Septic tank | Using lightweight concrete with 35 mm thick |
| O. | Terrace |
| 54 | Lightweight concrete panel | R panel with 75 mm thick |
| 55 | Covering | Covered by 10 ~ 15 mm thick flooring |
| P. | Canopy |
| 56 | Frame | Using steel profile RHS / SHS, joint system : welded |
| 57 | Roof | UPVC roof : Avantguard, W x L : 1130 x 2000 mm |
| | |
| | |
| Q. | Weight |
| 37 | House weight estimate | 12,3 ton |
| R. | Volume |
| 38 | House volume estimate | 12,3 m3 |