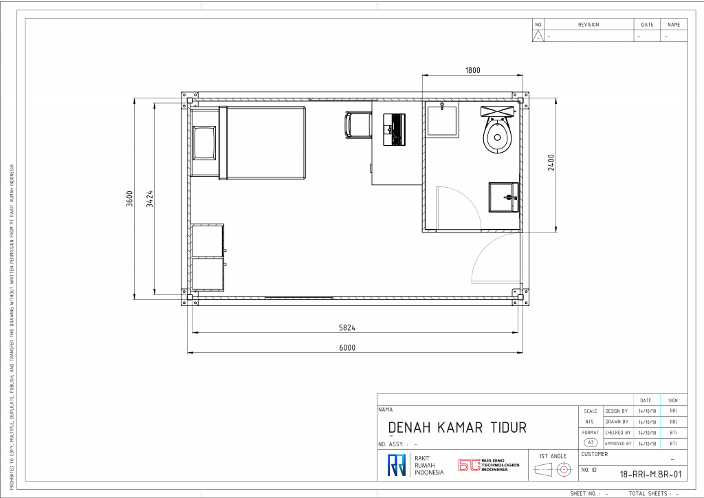
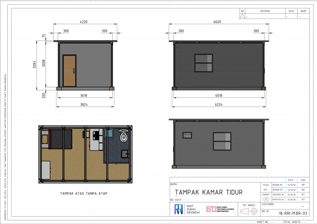
Module - Bed Room
Specification
| No | Deskripsi | Spesifikasi |
|---|---|---|
| 1 | Fondasi Modul | |
| a) Fondasi slab | * Slab K 150 tebal 20 cm | |
| b) Fondasi & Lantai Panggung | * Beton ringan quipanel | |
| 2 | Struktur dan dinding modul | |
| a) Kolom dan balok dari baja profil | * Square Hollow Section 100 | |
| b) Dinding terbuat dari beton ringan quipanel | * Bahan dinding panel tebal 50 mm | |
| 3 | Atap modul | |
| Atap flat dari panel yang dilapisi genteng aspal | * Panel atap tebal 75 mm | |
| * Genteng Aspal CT5 (Merk CTI) | ||
| 4 | Kusen dan daun pintu | |
| a) Kusen Pintu | * Kusen pintu terbuat dari aluminium profil warna putih | |
| a) Daun Pintu | * Pintu kamar dan kamar mandi dari beton ringan | |
| 5 | Jendela | |
| Kusen dan jendela | * Terbuat dari bahan aluminium, kaca tebal 5 mm | |
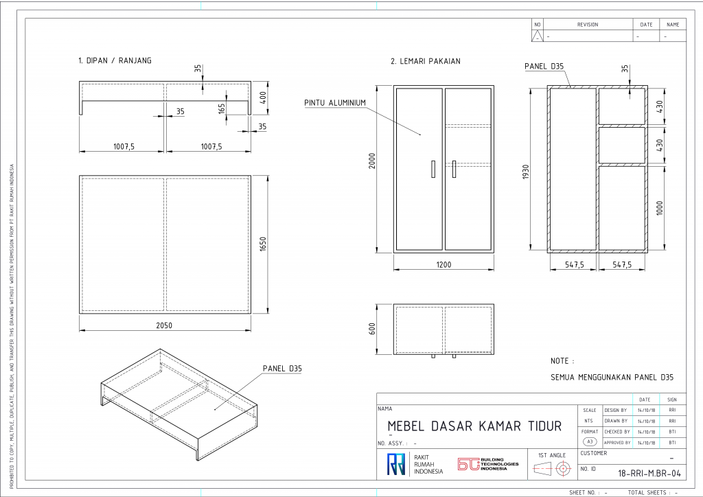
| 6 | Mebel dasar dan aksesoris | |
| Dipan / ranjang, lemari pakaian, meja belajar, rak buku gantung | * Terbuat dari beton quipanel tebal 50 dan 35 mm | |
| * Finishing cat | ||
| * Pintu lemari dan meja belajar dari bahan aluminium | ||
| 7 | Kamar mandi | |
| a) WC duduk | * Merek American Standard | |
| b) Wastafel | * Merek American Standard | |
| c) Bak air | * Terbuat dari bak fiber | |
| d) Aksesoris (keran, jet washer, floor drain dll) | * Stainless steel, merek Wasser, American Standard atau setara | |
| 8 | Cat | |
| Cat dinding | * Merek Nippon Paint | |
| 9 | Kelistrikan | |
| a) Kabel listrik | * Merek Supreme NYM 2 x 1.5 dan 3 x 1.5 | |
| b) Bola lampu | * Merek Philips | |
| c) Fitting / stop kontak / saklar | * Merek Broco atau setara | |
| d) MCB | * Merek Merlin Gerin atau setara | |
| e) MCB Box | * Merek Presto atau setara. | |
| f) | * Pemasangan kabel dan komponen listrik di expose rapih | |
| 10 | Saluran air bersih dan kotor | |
| a) Saluran air | * PVC 0.5 inch , 3 inch , 4 inch , elbow , socket , joint tergantung kebutuhan , class Aw | |
Price
| Kamar Tidur | |||
|---|---|---|---|
| Fondasi Slab | Fondasi Panggung | ||
| Harga dasar modul | : | Rp54.744.700 | Rp58.197.200 |
| Harga mebel dasar* | : | Rp11.689.000 | Rp11.689.000 |
| Jasa 10 % | : | Rp6.643.370 | Rp6.988.620 |
| Biaya pasang | : | Rp9.720.000 | Rp9.720.000 |
| Biaya packing | : | Rp864.000 | Rp864.000 |
| Total | : | Rp83.661.070 | Rp87.458.820 |
| Luas bangunan (m2) | : | 21,6 | 21,6 |
| Harga /m2 | : | Rp3.873.198 | Rp4.049.019 |
| Lama waktu pemasangan | : | 10 hari | 10 hari |
| Jumlah pekerja | : | 3 orang | 3 orang |
| Estimasi berat unit modul | : | 6,5 ton | 6,5 ton |
Harga belum termasuk :
a) Biaya pengiriman
b) Biaya supervisi
c) Pajak
* Mebel dasar adalah opsional. Pembeli bisa membeli modul dengan atau tanpa mebel dasar.







