Menu Tutup

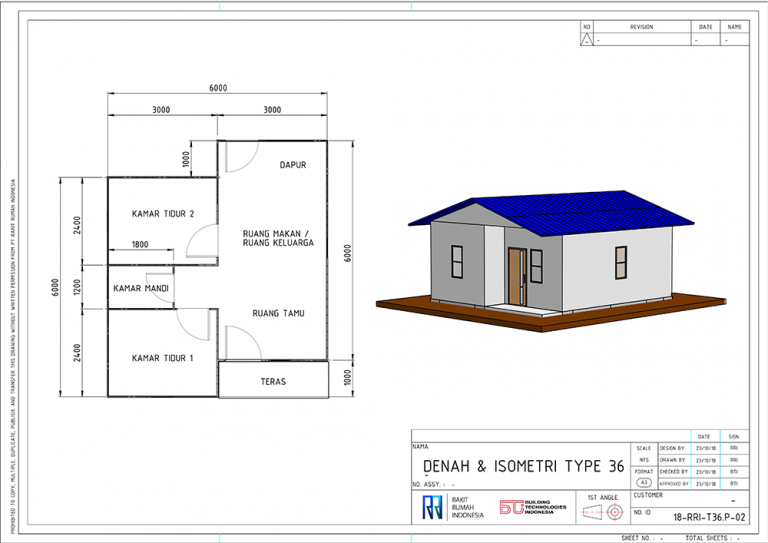
Type 36

Specification

NoUraian PekerjaanKeterangan
1Fondasi
Balok tapak cor beton ringan* Campuran semen dan styrofoam, diperkuat baja mesh. Lebar tapak 40 cm
2Lantai Rumah
Flooring* Acian dan semen
3Lantai Teras
Flooring* Acian dan semen
4Dinding
a) Terbuat dari beton ringan quipanel* Bahan dinding panel tebal 35 mm
b) Bagian atas dinding diperkuat dengan baja ringan dan diikat menggunakan sekrup* U channel 35 mm
* Sekrup
c} Sistim joint antara dinding dengan bahan mortar dan angkur lurus dan angkur U* Bahan joint mu 380 atau thinbad
* Angkur diameter 6 mm
5Atap Rumah
a) Rangka atap baja ringan dan atap evo gold* Truss C.75 x 0.7 @ 6 m
* Reng R 32
* Evo gold lebar 80 cm x tebal 1,35 mm x panjang 2,4 m
* Rabung 0.3 mm
* Flashing 0.3mm
* Lisplank
b) Sopi - sopi* GRC 10 mm (1,2 x 2,4 m)
6Plafon
Plafon* Gypsum tebal 8 mm
7Kusen dan Daun Pintu
a) Kusen Pintu* Terbuat dari bahan baja ringan tebal 1.5 mm
b) Daun Pintu* Pintu kamar mandi : ukuran 200 x 72 cm, dari rangka baja ringan square hollow 20 mm ditutup kalsi board.
* Pintu kamar tidur : ukuran 200 x 82 cm, dari rangka baja ringan square hollow 20 mm ditutup kalsi board.
* Pintu utama : ukuran 200 x 90 cm, dari rangka baja ringan square hollow 20 mm ditutup kalsi board.
c) Kunci & handle pintu* merek Dumont atau setara
8Jendela
a) Kusen dan jendela terbuat dari bahan aluminium* Ukuran jendela 66 x 120 cm, belah tengah.
* Kaca adalah bening dan tebal 5 mm
* Ukuran jendela kamar mandi 60 x 40 cm , kaca ES
9Kamar Mandi
a) WC jongkok* wc jongkok 1 buah, warna putih
b) Bak air* terbuat dari bak fiber
c) Keran air* dua buah keran air , merek Wasser atau setara
d) Floor drain* stainless steel
e) Lantai* lantai diplester semen dan di aci halus
10Cat
a) Cat tembok* cat dilakukan 2 x kuas dengan roll, nippon paint
b) Cat minyak* cat dilakukan 2 x kuas dengan roll, nippon paint
11Bahan Komponen Listrik
a) Kabel listrik* Merek Supreme NYM 2 x 1.5 dan 3 x 1.5
b) Bola lampu* Merek Philips
c) Fitting / stop kontak / saklar* Merek Broco atau setara
d) MCB* Merek Merlin Gerin atau setara
e) MCB Box* Merek Presto atau setara.
f)* Pemasangan kabel dan komponen listrik di expose rapih
12Saluran Air Bersih dan Kotor
a) Saluran air* PVC 0.5 inch , 3 inch , 4 inch , elbow , socket , joint tergantung kebutuhan , class Aw
b) Septic tank* terbuat dari bahan beton ringan tebal 50 mm ukuran mengikuti gambar
12Berat bangunan
Estimasi berat 1 unit type 367 ton

Price

Harga Rumah Type 36
Harga Ex Pabrik:Rp65.046.520
Biaya Packing:Rp1.500.000
Biaya Pemasangan:Rp9.000.000 (3 pekerja dalam 10 hari)
Biaya Supervisi:Rp0
Ongkos Kirim:Rp0
Grand Total:Rp75.546.520
Luas (m2):36
Harga /m2:Rp2.098.514

Harga belum termasuk :
a) Biaya pengiriman
b) Biaya supervisi
c) Pajak

Hubungi Kami sekarang!