| A. | House Dimension |
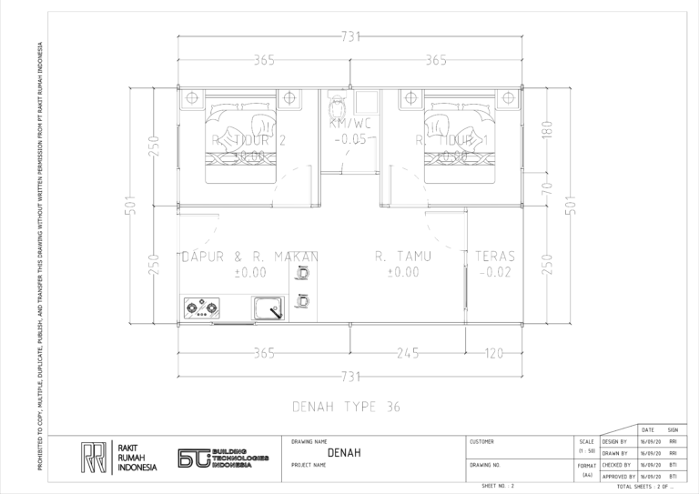
| 1 | Body (L x W x H) | 7,3 x 5 x 4,88 m |
| 2 | Terrace (L x W x H) | 2,5 x 1,2 x 0,1 m |
| 3 | House area | 36,5 m2 |
| 4 | Terrace area | 3 m2 |
| 5 | Roof slope | 35° |
| B. | Foundation |
| 6 | Column | Cakar ayam frame |
| 7 | Sloof | Lightweight concrete 300 x 100 mm (burried 150 mm or can be customized) |
| 8 | Slab | Thickness : 50 mm with K-150 ~ K-200 concrete quality |
| C. | Floor |
| 9 | Slab | Slab covered by 600 x 600 mm ceramic tile |
| Bathroom floor : slab covered by 250 x 250 mm ceramic tile |
| D. | Structure |
| 10 | Column & beam | Using steel profile RHS 100 x 50 x 3 mm, joint system : bolted by M10 |
| 11 | Joint bracket | 5 mm thick SS400 steel plate processed by laser cutting |
| 12 | Joint profile | Special shaped profile made from aluminium |
| E. | Wall |
| 13 | Lightweight concrete panel | Using lightweight concrete with several thickness option : D35 and D50 |
| Connection between wall panel using MU 380 or Thinbad and reinforced by straight and U steel anchor with Æ 6 mm |
| F. | Roof |
| 14 | Lightweight concrete panel | Using lightweight concrete with 35 mm thick covered by UPVC roof such as Avantguard and U shaped PVC list for each end of the panel |
| G. | Ceiling |
| 15 | Ceiling is optional due to customer need or other consideration | Using plafon gypsum with 9 mm thick and hollow frame |
| H. | Door |
| 16 | Door Frame | Aluminium anodized, white color |
| 17 | The door leaf is made of lightweight concrete with wall paint or oil paint and around the door is covered with PVC list. | Main and bedroom door (T x W x H) : 37 x 820 x 2100 mm |
| Bathroom door (T x W x H): 37 x 720 x 2000 mm |
| 18 | Lockcase, door handle dan hinge | Dumont and Hona |
| I. | Window |
| 19 | Window frame is made of aluminium | Main and bedroom window (W x L) : 1000 x 1200 mm, horizontal split in the middle |
| Bathroom window (W x L) : 300 x 600 mm |
| Clear glass with 5 mm thick (main and bedroom window) |
| Frosted glass with 5 mm thick (bathroom window) |
| J. | Sanitary |
| 20 | Toilet, washbasin and floor drain | American Standard |
| 21 | Water tap | Wasser or equivalent |
| K. | Paint |
| 22 | Exterior wall | Nippon Paint Vinilex Weatherbond (exterior) |
| 23 | Interior wall | Nippon Paint Vinilex (interior) |
| 24 | Bathroom wall - top section | Nippon Paint Vinilex |
| 25 | Bathroom wall - bottom section | Nippon Paint Elastex Waterproof 3 in 1 |
| 26 | Roof ceiling | Nippon Paint Vinilex |
| L. | Electrical |
| 27 | Cable | NYA Æ2,5 mm red, black, blue, L = 50 m |
| 28 | Cable duct | PVC material |
| 29 | Lamp & fitting | Phillips & Panasonic |
| 30 | Electric socket & switch | Panasonic / Schneider |
| 31 | MCB | Merlin Gerin 6 Ampere |
| 32 | MCB box | Presto or equivalent |
| M. | Plumbing |
| 33 | Clean water pipe | Maspion ½” AW class |
| 34 | Waste water pipe | Maspion 1”, 3" and 4" D class |
| 35 | Fitting | Rucika or equivalent |
| 36 | Septic tank | Using lightweight concrete with 35 mm thick |
| N. | Terrace |
| 37 | Lightweight concrete panel | R panel with 75 mm thick and covered by flooring |
| O. | Canopy |
| 38 | Frame | Using steel profile RHS 80 mm, joint system : welded |
| 39 | Roof | UPVC roof : Avantguard |
| | |
| | |
| P. | Weight |
| 37 | House weight estimate | … ton |
| Q. | Volume |
| 38 | House volume estimate | ... m3 |